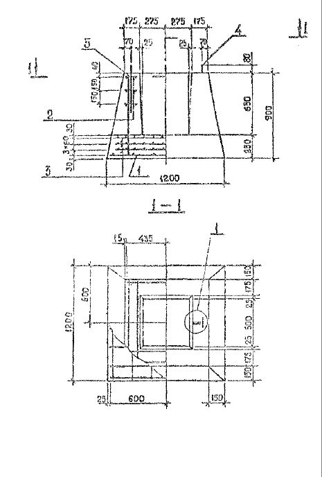
Ф 12
Характеристики изделия:
| Параметр | Значение |
|---|---|
| длина | 1200 мм |
| ширина | 1200 мм |
| высота | 1050 мм |
| масса | 2100 кг |
| нормативный документ | Серия 1.020-1 |
Цена:
Рассчитать стоимостьФ 12 Фундаменты Серия 1.020-1.
| Параметр | Значение |
|---|---|
| длина | 1200 мм |
| ширина | 1200 мм |
| высота | 1050 мм |
| масса | 2100 кг |
| нормативный документ | Серия 1.020-1 |
Ф 12 Фундаменты Серия 1.020-1.