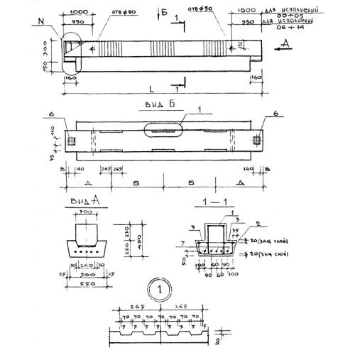
РДП 4.68

Чертеж изделия:
Характеристики изделия:
ПараметрЗначение
длина6760 мм
ширина550 мм
высота450 мм
масса3025 кг
нормативный документСерия 1.020-1

РДП 4.68  Ригели с двумя полками  Серия 1.020-1.