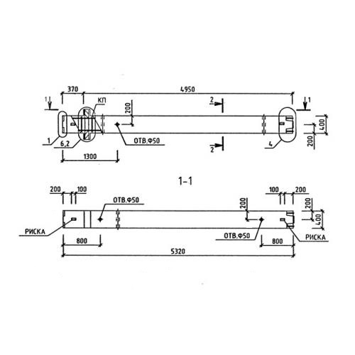
1КВ 60 колонны

Чертеж изделия:
Характеристики изделия:
ПараметрЗначение
длина5320 мм
ширина400 мм
высота400 мм
масса2127,5 кг
нормативный документСерия 1.020-1/87

1КВ 60  Колонны верхние Серия 1.020-1/87.