2ПР 18

Чертеж изделия:
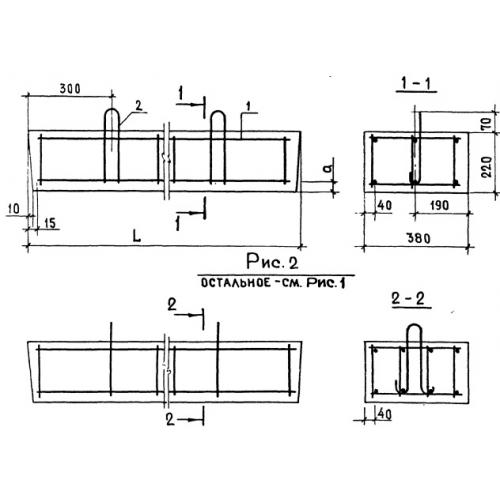
Характеристики изделия:
ПараметрЗначение
длина1810 мм
ширина380 мм
высота220 мм
вес378 кг
серия1.138-10

2ПР 18 Перемычки плитные по серии 1.138-10.