ПТ 21

Чертеж изделия:
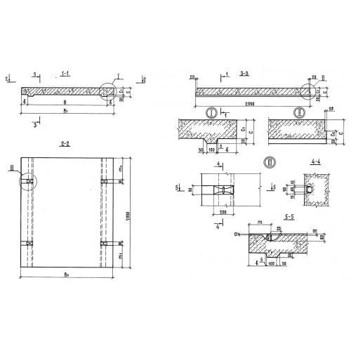
Характеристики изделия:
ПараметрЗначение
длина3990 мм
ширина2460 мм
высота210 мм
масса3000 кг
нормативный документСерия 3.006.1-3/83

ПТ 21  Плиты перекрытия тоннелей Серия 3.006.1-3/83.