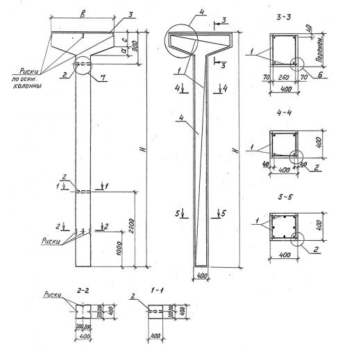
К 23 колонна сборная

Чертеж изделия:
Характеристики изделия:
ПараметрЗначение
длина7400 мм
ширина1200 мм
высота1200 мм
масса3400 кг
нормативный документСерия 3.015-1/92

К 23  Колонны сборные Серия 3.015-1/92.