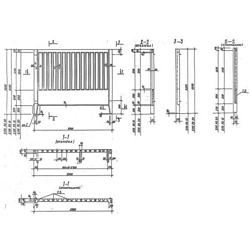
2ПБ 30.16 панель ограждения

Чертеж изделия:
Характеристики изделия:
ПараметрЗначение
длина3000 мм
ширина120 мм
высота2150 мм
масса1200 кг
нормативный документСерия 3.017-3.

2ПБ 30.16  Плита бетонная (панель ограждения) Серия 3.017-3.