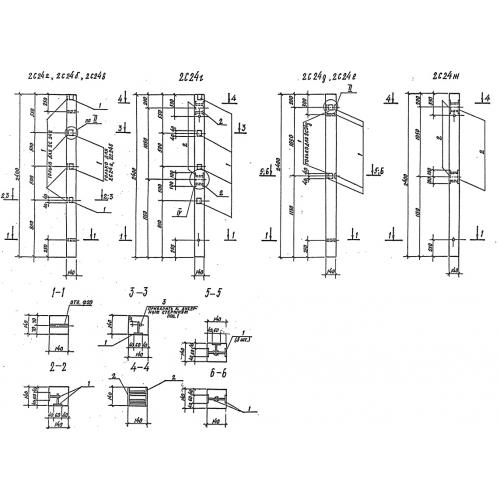
2С 24 столб забора

Чертеж изделия:
Характеристики изделия:
ПараметрЗначение
длина2400 мм
ширина140 мм
высота140 мм
масса130 кг
нормативный документСерия 3.017-3

2С 24  Железобетонные стобы оград Серия 3.017-3.