БН 1.276
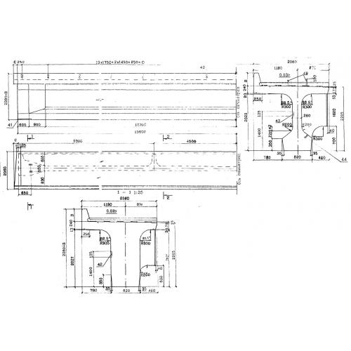
Характеристики изделия:
| Параметр | Значение |
|---|---|
| длина | 27600 мм |
| ширина | 2060 мм |
| высота | 2830 мм |
| вес | 102100 кг |
| серия | 3.501.1-175.93 |
Цена:
Рассчитать стоимостьБН 1.276 Балки ребристые из предварительно напряженного железобетона по серии 3.501.1-175.93.
