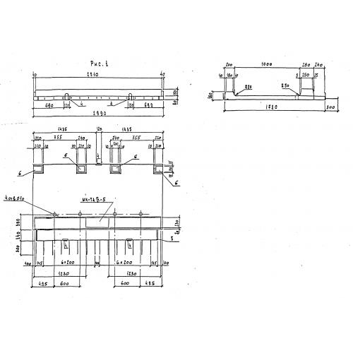
Т 100.15

Чертеж изделия:
Характеристики изделия:
ПараметрЗначение
длина2990 мм
ширина1720 мм
высота180 мм
вес1500 кг
серия3.503.1-108

Т 100.15 Тротуарные блоки по серии 3.503.1-108.