ФП-2

Чертеж изделия:
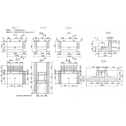
Характеристики изделия:
ПараметрЗначение
длина3520 мм
ширина5000 мм
высота1720 мм
вес10500 кг
серия3.503.1-53

ФП-2 Блоки фундамента промежуточные по серии 3.503.1-53.