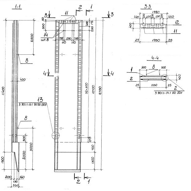
2ПС 114.4-3ш-1

Чертеж изделия:
Характеристики изделия:
ПараметрЗначение
Длина1980 мм
Ширина400 мм
Высота12700 мм
Масса23530 кг
Нормативный документСерия 3.901.1-14

2ПС 114.4-3ш-1   Панель стеновая по Серии 3.901.1-14.

Маркировка

2 - опускной способ производства работ;

ПС - панель стеновая;

114 - длина стеновой панели в дм;

4 - толщина стеновой панели в дм;

3 - тип армирования;

ш - вариант со шпоночным стыком;

1 - стеновая панель с закладными деталями для устройства горизонтального стыка.