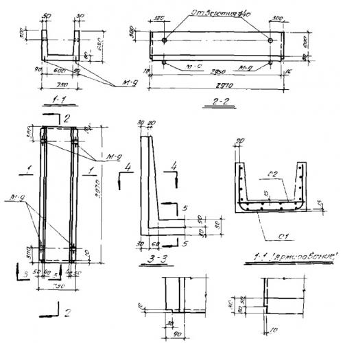
Л 3 лотки
Характеристики изделия:
| Параметр | Значение |
|---|---|
| длина | 2970 мм |
| ширина | 780 мм |
| высота | 680 мм |
| масса | 1070 кг |
| нормативный документ | Серия ИС 01-04 |
Цена:
Рассчитать стоимостьЛ 3 Железобетонные лотки по Серии ИС 01-04.
| Параметр | Значение |
|---|---|
| длина | 2970 мм |
| ширина | 780 мм |
| высота | 680 мм |
| масса | 1070 кг |
| нормативный документ | Серия ИС 01-04 |
Л 3 Железобетонные лотки по Серии ИС 01-04.
