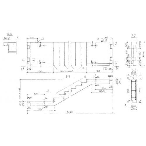
ЛМ 15-10.5 лестничные марши

Чертеж изделия:
Характеристики изделия:
ПараметрЗначение
длина5120 мм
ширина1050 мм
высота1500 мм
масса3875 кг
нормативный документСерия КУБ 2.5

ЛМ 15-10.5  Лестничные марши Серия КУБ 2.5.