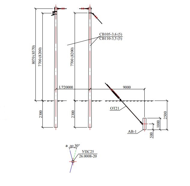
УПС 25

Чертеж изделия:
Характеристики изделия:
ПараметрЗначение
длина10370 мм
ширина205 мм
высота280 мм
вес1175 кг
Шифр26.0008

УПС 25 Угловые одноцепные опоры с оттяжкой по Шифру 26.0008.