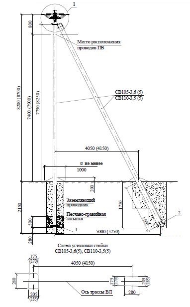
ПА 29

Чертеж изделия:
Характеристики изделия:
ПараметрЗначение
длина10350 мм
ширина205 мм
высота280 мм
масса1175 кг
нормативный документШифр 26.0085

ПА 29   Переходные анкерные (концевые) одноцепные опоры Шифр 26.0085.