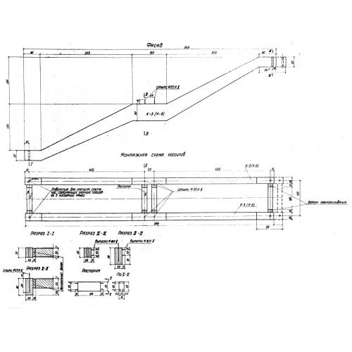
К 3
Характеристики изделия:
| Параметр | Значение |
|---|---|
| длина | 9490 мм |
| ширина | 260 мм |
| высота | 3080 мм |
| масса | 3000 кг |
| нормативный документ | ТП 501-166 |
Цена:
Рассчитать стоимостьК 3 Косоуры по Типовому проекту ТП 501-166.
| Параметр | Значение |
|---|---|
| длина | 9490 мм |
| ширина | 260 мм |
| высота | 3080 мм |
| масса | 3000 кг |
| нормативный документ | ТП 501-166 |
К 3 Косоуры по Типовому проекту ТП 501-166.
