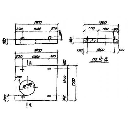
КЦП 18-15

Чертеж изделия:
Характеристики изделия:
ПараметрЗначение
длина1800 мм
ширина1500 мм
высота180 мм
вес1055 кг
серияТП 902-9-1

КЦП 18-15 Плиты перекрытия ливневой канализации по проекту ТП 902-9-1.